house | monte alvo
built 2024
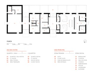
monte alvo reinterprets the architectural tradition of the Alentejo through simple forms, functional spaces, and a strong dialogue with climate and landscape. the single-story house combines whitewashed walls, thick masonry, ceramic-tile roofing, and oversized chimneys that provide ventilation, cooling, and light. vernacular arches define circulation and add spatial continuity, while three independent units reflect the site’s history of communal living, allowing use by different generations of the same family. openings frame the surrounding landscape, and passive strategies, local materials, and provisions for renewable energy root the project in sustainability while preserving the emotional and architectural memory of place.











